Propiedades

Descripción
Metros:

265.00 mt²

Dormitorios:

5 dormitorios

Baños:

3 baños

Ambientes:

6 ambientes

Estacionamientos:

1 estacionamientos

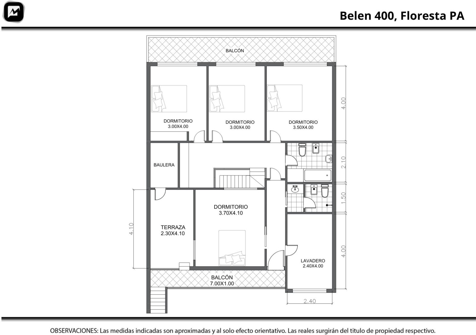
Casa de 6 ambientes desarrollada en dos plantas sobre lote propio de 10 m de frente x 26,50 m de fondo (265 m²), con jardín, pileta y cochera. La propiedad cuenta ofreciendo ambientes amplios, funcionales y muy buena distribución, combinando cómodos espacios interiores con un agradable sector exterior. En planta baja: ingresamos por la entrada principal que es por la cochera cub. Living comedor al frente y cocina independiente con comedor diario, baño completo y un dormitorio amplio con vista al Jardín. Y salida a una galería semicubierta con toldo y con parrilla, que conecta con el jardín con pileta, generando un espacio ideal para disfrutar reuniones y momentos al aire libre. En planta alta: se encuentran cuatro dormitorios, dos baños completos, lavadero y espacios de guardado. Algunos de los dormitorios cuentan con salida a balcón y terraza, aportando muy buena luz natural y ventilación a los ambientes. La propiedad se destaca por su amplitud, distribución funcional y espacios exteriores, ideal para familias que buscan comodidad y lote propio en la ciudad. Superficie del lote: 10 m de frente x 26,50 m de fondo (265 m²) En la escritura figura las medidas del lote. Ubicación: Belén 471, barrio Vélez Sarsfield. Zona residencial tranquila, con cercanía a avenidas principales como Av. Juan B. Justo, Av. Lope de Vega y Av. Gaona, lo que brinda muy buena conectividad. Cuenta con acceso a múltiples líneas de colectivo cercanas, entre ellas 25, 47, 53, 106, 107, 109, 135 y 181, además de fácil acceso al Metrobús de Av. Juan B. Justo, que conecta rápidamente con distintos puntos de la ciudad. Toda la información del aviso, incluyendo medidas, precio, impuestos, servicios, etc., son estimativos, sujetos a modificación y no vinculantes, según lo dispuesto en el art. 973 del Código Civil y Comercial. Toda la información del aviso, incluyendo medidas, precio, impuestos, servicios, etc. son estimativos, sujetos a modificación y no vinculantes, según lo dispuesto en el art. 973, Cód. Civ. y Com.

Todos los detalles
Ubicación

Dirección: Belen 471

Zona: Velez Sarsfield

Provincia/Estado: Capital Federal, Argentina

Código postal: 1407

Recorrido 360
Video
La propiedad indicada se encuentra Reservada
Casas en venta

Venta Casa de 6 amb con Jardín, Pileta y Cochera cub.

Belen 471 - Velez Sarsfield - Velez Sarsfield, Capital Federal, Capital Federal 50 visitas al momento
USD 348.000 En venta RESERVADA

  • Ambientes: 6
  • Dormitorios: 5
  • Baños: 3
  • Estacionamientos: 1
  • Superficie: 265.00mt²
  • Cubierto: 180mt²
Descripción

Casa de 6 ambientes desarrollada en dos plantas sobre lote propio de 10 m de frente x 26,50 m de fondo (265 m²), con jardín, pileta y cochera. La propiedad cuenta ofreciendo ambientes amplios, funcionales y muy buena distribución, combinando cómodos espacios interiores con un agradable sector exterior. En planta baja: ingresamos por la entrada principal que es por la cochera cub. Living comedor al frente y cocina independiente con comedor diario, baño completo y un dormitorio amplio con vista al Jardín. Y salida a una galería semicubierta con toldo y con parrilla, que conecta con el jardín con pileta, generando un espacio ideal para disfrutar reuniones y momentos al aire libre. En planta alta: se encuentran cuatro dormitorios, dos baños completos, lavadero y espacios de guardado. Algunos de los dormitorios cuentan con salida a balcón y terraza, aportando muy buena luz natural y ventilación a los ambientes. La propiedad se destaca por su amplitud, distribución funcional y espacios exteriores, ideal para familias que buscan comodidad y lote propio en la ciudad. Superficie del lote: 10 m de frente x 26,50 m de fondo (265 m²) En la escritura figura las medidas del lote. Ubicación: Belén 471, barrio Vélez Sarsfield. Zona residencial tranquila, con cercanía a avenidas principales como Av. Juan B. Justo, Av. Lope de Vega y Av. Gaona, lo que brinda muy buena conectividad. Cuenta con acceso a múltiples líneas de colectivo cercanas, entre ellas 25, 47, 53, 106, 107, 109, 135 y 181, además de fácil acceso al Metrobús de Av. Juan B. Justo, que conecta rápidamente con distintos puntos de la ciudad. Toda la información del aviso, incluyendo medidas, precio, impuestos, servicios, etc., son estimativos, sujetos a modificación y no vinculantes, según lo dispuesto en el art. 973 del Código Civil y Comercial. Toda la información del aviso, incluyendo medidas, precio, impuestos, servicios, etc. son estimativos, sujetos a modificación y no vinculantes, según lo dispuesto en el art. 973, Cód. Civ. y Com.

Detalles
  • Código: KP491036
  • Categoría: Casas
  • Estado: Reservada
  • Venta: USD 348.000
  • Dirección: Belen 471
  • Zona: Velez Sarsfield
  • Barrio: Velez Sarsfield
  • Ciudad: Capital Federal
  • Provincia: Capital Federal
  • País: Argentina
  • Ambientes: 6
  • Dormitorios: 5
  • Baños: 3
  • Baños de servicio: 1
  • Estacionamientos: 1
  • Pisos en el edificio: 2
  • Superficie total: 265.00
  • Superficie cubierta: 180
  • Superficie descubierta: 85
  • Dimensiones del terreno: 265
  • Metros de frente: 10.00
  • Metros de fondo: 27
  • Año de construcción: 1995
  • Expensas: USD 0
Últimas Propiedades